PLAN ID: MV401760
$1,395.00
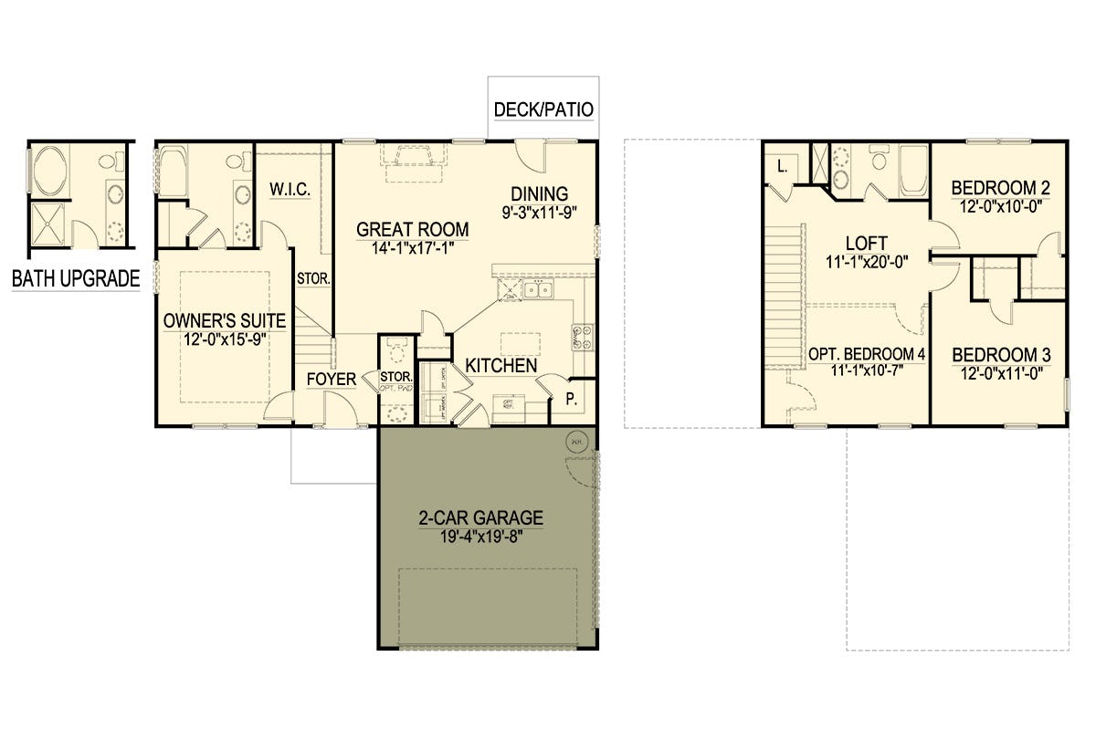
Unbelievable master down with plenty of storage and has the potential to be a four bedroom home with a computer loft. All in 1760SF. The only thing that makes this plan greater is that it is very efficient to build.
2-Story, First Floor Master, Mega Value Series, Best Sellers
Square Feet: 1,760
Footprint: 40-0 x 46-5
Square Feet: 1,760
Footprint: 40-0 x 46-5
