PLAN ID: MV402358
$1,395.00
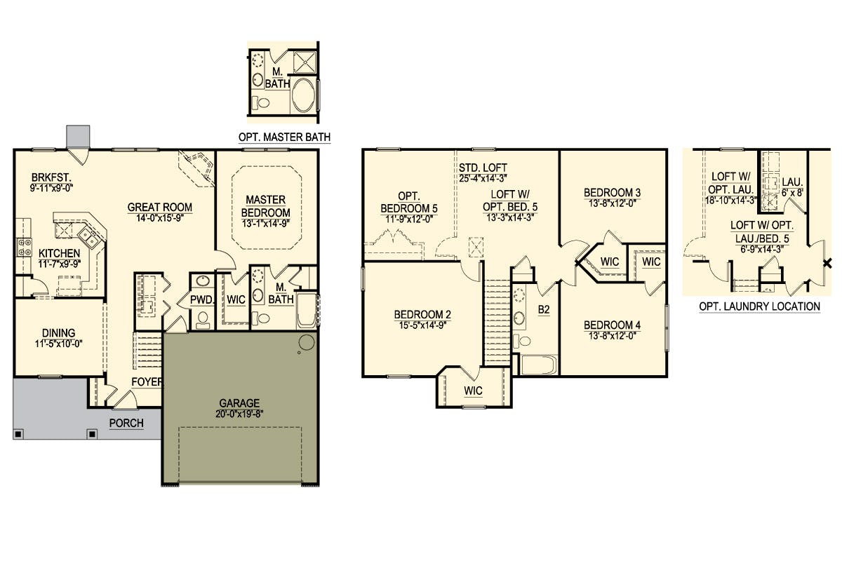
This plan has an open floor plan with the master bedroom on the main floor. The upstairs has room to grow. Three bedrooms have walk-in closets and great room sizes. Move the laundry upstairs or add a fifth bedroom! Customize this plan for your clients needs!
2-Story, First Floor Master, Mega Value Series, New Releases
Square Feet: 2,358
Footprint: 40-0 x 44-0
Square Feet: 2,358
Footprint: 40-0 x 44-0
