PLAN ID: MV403112
$1,395.00
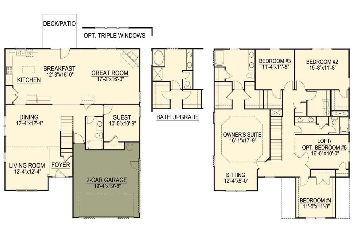
Introducing one of the most "open" and efficient home plans that we offer. There is plenty of storage, closets, and flexible living in this "up to six" bedroom plan. You will be able to offer a huge amount of square footage for a much lower price.
2-Story, Mega Value Series, First Floor Guest BR
Square Feet: 3,112
Footprint: 40-0 x 50-0
Square Feet: 3,112
Footprint: 40-0 x 50-0
