skip to main content

PLAN ID: MV461472

$1,395.00
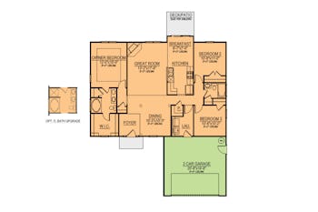
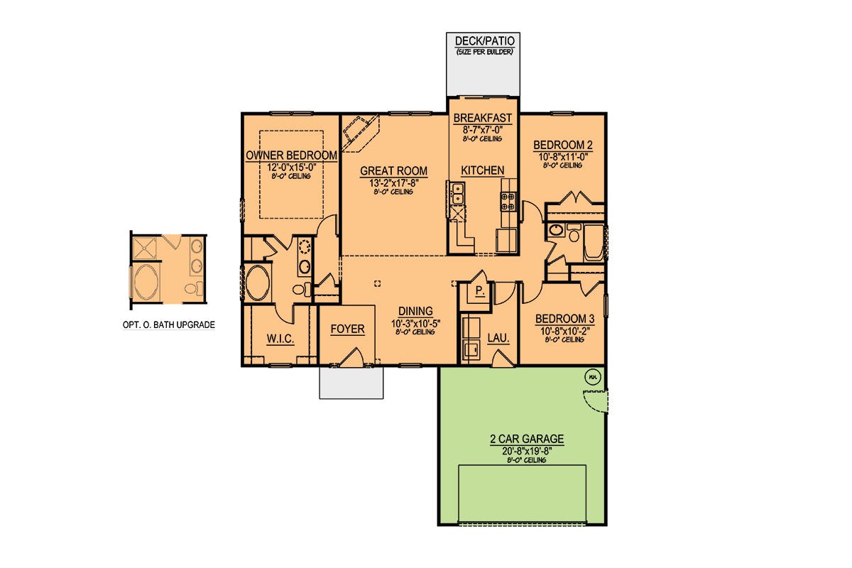
Nice plan with a modern split bedroom design. The floorplan is designed with an open kitchen/breakfast and great room arrangement that gives a "large feel" to the home. Bedrooms two and three are adequately sized and are connected to the second bath. The owner's bedroom features a spacious walk-in closet. A great plan for a narrow lot size.
Ranch, Mega Value Series
Square Feet: 1,472
Footprint: 46-0 x 54-0

One elevation is included
Elevation A
Elevation B
Elevation C

One foundation is included

Elevations
Plan Specifications
Max Square Feet: 1,472
Base Footprint: 46-0 x 54-0
Max Footprint: 46-0 x 54-0
Owner Bedroom: 12-0 x 15-0
Great Room: 13-2 x 17-8
Bedrooms: 3
Baths: 2
Typical Roof Pitches:
  • Front To Back: 8/12
  • Return Gables: 8/12
Ceiling Heights:
  • First Floor: 8ft
  • Second Floor: n/a
Included Plan Options
Owner Bath upgrade, Volume ceilings on Owner Bedroom-Great Room-Kitchen, Side-Entry Garage

Similar Plans

Ranch, Mega Value Series
Sq Ft: 1,014
Max Sq Ft: 1,014
Footprint: 28-0 x 46-0
$1,395.00
Ranch, Mega Value Series
Sq Ft: 1,020
Max Sq Ft: 1,020
Footprint: 34-0 x 34-0
$1,395.00
Ranch, Mega Value Series
Sq Ft: 1,054
Max Sq Ft: 1,054
Footprint: 46-0 x 35-0
$1,395.00
Ranch, Mega Value Series
Sq Ft: 1,116
Max Sq Ft: 1,116
Footprint: 26-0 x 44-0
$1,395.00
Ranch, Mega Value Series
Sq Ft: 1,200
Max Sq Ft: 1,200
Footprint: 34-0 x 38-0
$1,395.00
Ranch, Mega Value Series
Sq Ft: 1,232
Max Sq Ft: 1,232
Footprint: 58-0 x 33-0
$1,395.00
Ranch, Mega Value Series
Sq Ft: 1,248
Max Sq Ft: 1,248
Footprint: 44-0 x 47-0
$1,395.00
Ranch, Mega Value Series
Sq Ft: 1,302
Max Sq Ft: 1,302
Footprint: 46-0 x 47-0
$1,395.00
Ranch, Mega Value Series
Sq Ft: 1,335
Max Sq Ft: 1,335
Footprint: 40-0 x 54-0
$1,395.00
Ranch, Mega Value Series
Sq Ft: 1,370
Max Sq Ft: 1,370
Footprint: 28-0 x 51-0
$1,395.00
Ranch, Mega Value Series
Sq Ft: 1,384
Max Sq Ft: 1,384
Footprint: 48 x 45
$1,395.00
Ranch, Mega Value Series
Sq Ft: 1,487
Max Sq Ft: 1,487
Footprint: 40-0 x 50-0
$1,395.00
Ranch, Mega Value Series
Sq Ft: 1,536
Max Sq Ft: 1,536
Footprint: 48-0 x 52-0
$1,395.00
Ranch, Mega Value Series
Sq Ft: 1,784
Max Sq Ft: 1,784
Footprint: 40-0 x 50-0
$1,395.00

STOCK PLANS BY BPS

Build Simple. Build Value. Build More For Less.
SHOP NOW
Builders PlanSource
Builders PlanSource
P.O. Box 836
149 Pineview Drive, Suite A
King, North Carolina 27021

© Copyright 2026, Builders PlanSource. All Rights Reserved.
Disclaimer | Privacy | Site Map | Home Builder Websites by Blue Tangerine