PLAN ID: DPX603704
$1,595.00
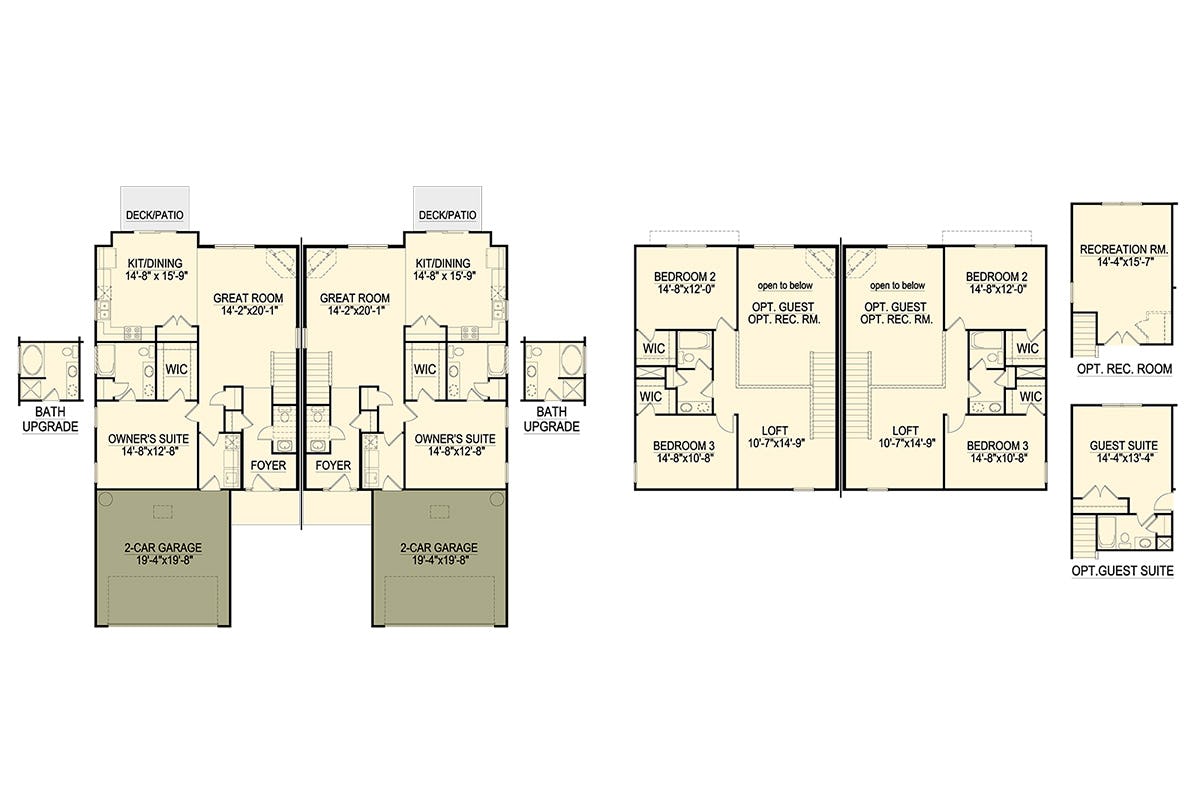
Each 1852sq.ft. unit is a two-story narrow plan with a main level owner suite. Each unit has a large eat-in kitchen that opens to a spacious great room. The unit's second level offers sizeable bedrooms along with a balcony overlooking the great room. This open area can be walled to accomodate the recreation room option or the optional guest suite with a private bath. With it's comfortable size and function, this duplex design is a good choice for any builder's portfolio or an investor's vision.
2-Story, Duplex
Square Feet: 3,704
Footprint: 60-4 x 58-0
Square Feet: 3,704
Footprint: 60-4 x 58-0
