PLAN ID: MV402164
$1,395.00
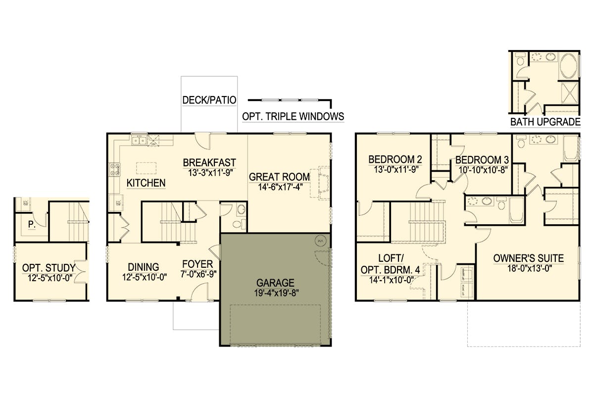
This four bedroom, two and one half bath offers huge walk-in closets even in the secondary bedrooms. From the sizable entry way and formal dining to the fantastic owner suite, this plan offers big living in a modest square footage.
2-Story, Mega Value Series, Best Sellers
Square Feet: 2,164
Footprint: 40-0 x 38-0
Square Feet: 2,164
Footprint: 40-0 x 38-0
