PLAN ID: MV402241
$1,395.00
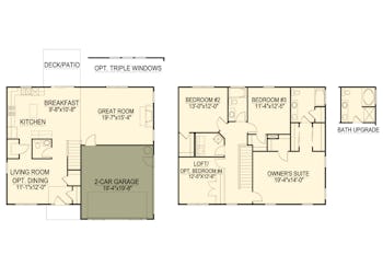
Best Seller! Open floor plan design with flexible living areas. Oversized Owner Suite with plenty of closets. An extremely efficient design and attractive floor plan allows for great profit potential for the builder.
2-Story, Mega Value Series, Best Sellers
Square Feet: 2,241
Footprint: 40-0 x 36-0
Square Feet: 2,241
Footprint: 40-0 x 36-0
