skip to main content

PLAN ID: MV402329

$1,395.00
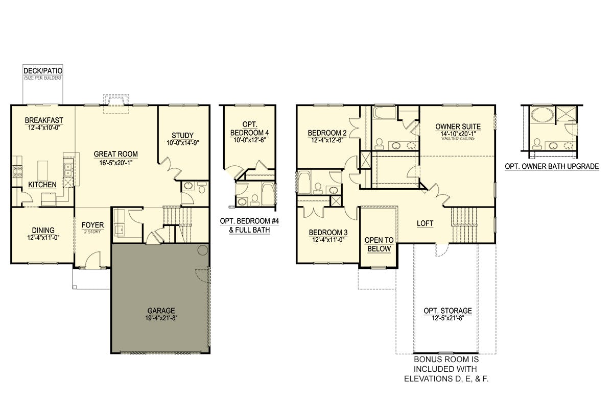
This plan is a builder favorite. It features a main level study capable of being a guest bedroom. Two story foyer creates a grand entrance. The stair is "tucked" away just far enough to keep traffic out of the foyer but it still adds an accent to the enlarged great room. The owner suite has volume ceilings with plant shelves and offers an upgraded bath option. This plan offers a huge walk-in storage area above the garage or you may choose to build the bonus room above the garage by choosing elevation D, E, or F. The bonus room takes this plan to over 2600sf.
2-Story
Square Feet: 2,329
Footprint: 40-0 x 50-0

One elevation is included
Elevation A
Elevation B
Elevation C
Elevation D
Elevation E
Elevation F

One foundation is included

Elevations
Plan Specifications
Max Square Feet: 2,618
Base Footprint: 40-0 x 50-0
Max Footprint: 40-0 x 50-5
Owner Bedroom: 14-10 x 20-1
Great Room: 16-5 x 20-1
Bedrooms: 4
Baths: 2.5
Typical Roof Pitches:
  • Front To Back: 8/12
  • Return Gables: 10/12
Ceiling Heights:
  • First Floor: 9ft
  • Second Floor: 8ft
Included Plan Options
Optional Bedroom 4 and Full bath on main level, storage above garage, owner bath upgrade, misc. window options, and the bonus room is included with elevations D, E, and F.

Similar Plans

2-Story
Sq Ft: 1,192
Max Sq Ft: 1,192
Footprint: 20 x 36
$1,395.00
2-Story
Sq Ft: 1,456
Max Sq Ft: 1,478
Footprint: 40-0 x 31-0
$1,395.00
2-Story
Sq Ft: 1,512
Max Sq Ft: 1,512
Footprint: 28-0 x 33-0
$1,395.00
2-Story
Sq Ft: 1,550
Max Sq Ft: 1,550
Footprint: 34-0 x 30-4
$1,395.00
2-Story
Sq Ft: 1,566
Max Sq Ft: 1,815
Footprint: 34-0 x 40-0
$1,395.00
2-Story
Sq Ft: 1,612
Max Sq Ft: 1,780
Footprint: 40-0 x 33-0
$1,395.00
2-Story
Sq Ft: 1,695
Max Sq Ft: 1,695
Footprint: 38-0 x 38-0
$1,395.00
2-Story
Sq Ft: 1,715
Max Sq Ft: 1,715
Footprint: 32-0 x 34-0
$1,395.00
2-Story
Sq Ft: 1,716
Max Sq Ft: 1,996
Footprint: 48-0 x 33-0
$1,395.00
2-Story
Sq Ft: 1,732
Max Sq Ft: 1,732
Footprint: 26-0 x 44-0
$1,395.00
2-Story
Sq Ft: 1,760
Max Sq Ft: 1,760
Footprint: 40-0 x 46-5
$1,395.00
2-Story
Sq Ft: 1,852
Max Sq Ft: 2,185
Footprint: 30-0 x 58-0
$1,395.00
2-Story
Sq Ft: 1,856
Max Sq Ft: 1,856
Footprint: 32-0 x 35-0
$1,395.00
2-Story
Sq Ft: 1,937
Max Sq Ft: 1,937
Footprint: 40-0 x 34-0
$1,395.00
2-Story
Sq Ft: 2,008
Max Sq Ft: 2,008
Footprint: 34 x 42
$1,395.00
2-Story
Sq Ft: 2,018
Max Sq Ft: 2,018
Footprint: 34-0 x 37-0
$1,395.00
2-Story
Sq Ft: 2,032
Max Sq Ft: 2,032
Footprint: 36 x 40
$1,395.00
2-Story
Sq Ft: 2,042
Max Sq Ft: 2,042
Footprint: 40-0 x 45-0
$1,395.00
2-Story
Sq Ft: 2,094
Max Sq Ft: 2,238
Footprint: 36 x 50
$1,395.00
2-Story
Sq Ft: 2,105
Max Sq Ft: 2,105
Footprint: 40-0 x 35-0
$1,395.00
2-Story
Sq Ft: 2,164
Max Sq Ft: 2,164
Footprint: 40-0 x 38-0
$1,395.00
2-Story
Sq Ft: 2,223
Max Sq Ft: 2,223
Footprint: 64-0 x 34-0
$1,395.00
2-Story
Sq Ft: 2,241
Max Sq Ft: 2,241
Footprint: 40-0 x 36-0
$1,395.00
2-Story
Sq Ft: 2,245
Max Sq Ft: 2,263
Footprint: 40-0 x 36-0
$1,395.00
2-Story
Sq Ft: 2,258
Max Sq Ft: 2,258
Footprint: 44-0 x 50-0
$1,395.00
2-Story
Sq Ft: 2,308
Max Sq Ft: 2,843
Footprint: 31-4 x 43-0
$1,395.00
2-Story
Sq Ft: 2,330
Max Sq Ft: 2,330
Footprint: 40-0 x 45-0
$1,395.00
2-Story
Sq Ft: 2,358
Max Sq Ft: 2,358
Footprint: 40-0 x 44-0
$1,395.00
2-Story
Sq Ft: 2,370
Max Sq Ft: 2,389
Footprint: 52-0 x 41-0
$1,395.00
2-Story
Sq Ft: 2,389
Max Sq Ft: 2,389
Footprint: 40-0 x 40-0
$1,395.00
2-Story
Sq Ft: 2,419
Max Sq Ft: 2,431
Footprint: 40-0 x 38-0
$1,395.00
2-Story
Sq Ft: 2,495
Max Sq Ft: 2,495
Footprint: 40-0 x 49-0
$1,395.00
2-Story
Sq Ft: 2,529
Max Sq Ft: 2,669
Footprint: 46-0 x 55-0
$1,395.00
2-Story
Sq Ft: 2,603
Max Sq Ft: 2,603
Footprint: 40-0 x 49-0
$1,395.00
2-Story
Sq Ft: 2,632
Max Sq Ft: 2,632
Footprint: 40-0 x 47-0
$1,395.00
2-Story
Sq Ft: 2,785
Max Sq Ft: 2,785
Footprint: 44-0 x 44-0
$1,395.00
2-Story
Sq Ft: 2,852
Max Sq Ft: 3,247
Footprint: 56-0 x 42-5
$1,395.00
2-Story
Sq Ft: 3,112
Max Sq Ft: 3,112
Footprint: 40-0 x 50-0
$1,395.00
2-Story
Sq Ft: 3,132
Max Sq Ft: 3,588
Footprint: 68-0 x 40-0
$1,595.00
2-Story
Sq Ft: 3,186
Max Sq Ft: 3,186
Footprint: 40-0 x 46-0
$1,395.00
2-Story
Sq Ft: 3,464
Max Sq Ft: 3,464
Footprint: 52-0 x 44-0
$1,595.00
2-Story
Sq Ft: 3,685
Max Sq Ft: 3,685
Footprint: 40-0 x 54-0
$1,395.00
2-Story
Sq Ft: 3,704
Max Sq Ft: 3,704
Footprint: 60-4 x 58-0
$1,595.00
2-Story
Sq Ft: 4,616
Max Sq Ft: 5,562
Footprint: 63-4 x 43-0
$1,595.00

STOCK PLANS BY BPS

Build Simple. Build Value. Build More For Less.
SHOP NOW
Builders PlanSource
Builders PlanSource
P.O. Box 836
149 Pineview Drive, Suite A
King, North Carolina 27021

© Copyright 2026, Builders PlanSource. All Rights Reserved.
Disclaimer | Privacy | Site Map | Home Builder Websites by Blue Tangerine